Appartement 5 pièce(s) 4 chambre(s) 148.75 m²
La Palmyre (17570)A propos de ce bien
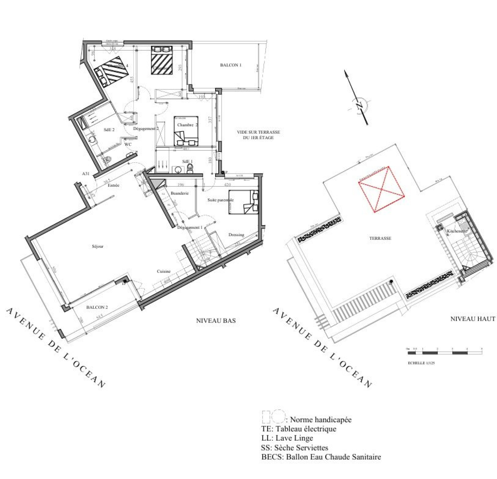
LA PALMYRE CENTRE VILLE Au 3e étage avec ascenseur d'une résidence neuve de standing au coeur de la Palmyre, un appartement Duplex de 5 comprenant pour 148.75m² habitables : Une entrée donnant sur un séjour avec cuisine américaine donnant sur une terrasse, une suite parentale (chambre, dressing; salle d'eau avec wc), trois chambres dont deux donnant sur une terrasse, une salle d'eau et un wc séparé. A l'étage : une cuisine d'été donnant sur un toit terrasse (rooftop) de 75.05m²! Une cave de plus de 10m² et 2 parkings privatifs en sous-sol Normes RT2012. Contactez-nous sans tarder.
Cet appartement de type 5 vous est proposé à la vente par l'agence LEMAITRE IMMOBILIER à la Palmyre. Nombre de lots de la copropriété 83 dont 20 principaux. Honoraires inclus charge acquéreur : 26986€ TTC (prix 771014 €euros hors honoraires). « Les informations sur les risques auxquels ce bien est exposé sont disponibles sur le site Géorisques : www.georisques.gouv.fr ».
Caractéristiques de ce bien
- Surface 148,75 m²
- 4 chambre(s)
- 2 salle(s) d'eau
- construit en 2025
- 3ème étage
- 1 ascenseur
- cave
- terrasse
